消防应急照明和疏散指示装置
为企业微电网提供能效管理和用电安全解决方案
消防应急照明和疏散指示装置
消防应急照明和疏散指示系统由控制器(主机)、集中电源(供电),分配电装置(分机)和灯具(疏散指示灯、应急照明灯)等几部分组成。该系统配合火灾报警控制器的使用,在危急时刻,能够快速针对风向、就近出口、火灾的走势、人群密度做出分析,给出安全的疏散路径指示,智能打开消防应急标志灯的指示方向以及应急照明灯,帮助建筑内的人群实时地选择逃生路线,指引安全逃生方向,保障群众的人身安全,为各商家担心的安全问题解决了后顾之忧。
应用范围:
适用于机场、轨道交通、隧道、客运枢纽、医院、学校、体育馆、展览馆、星级酒店、高端商业楼盘等场所。订货范例:
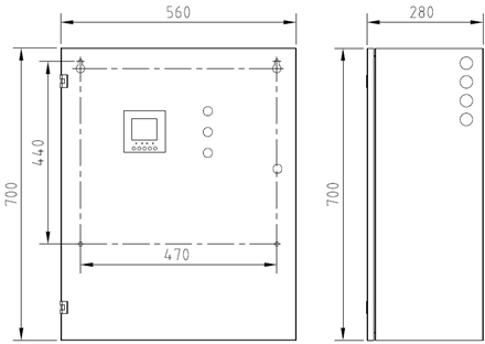
具体型号:A-BLJC-2OEⅡ1W-A420应急照明控制器
类别 | 描述 |
输入电源 | AC220V/50Hz, |
备用电源 | 阀控密封式铅酸蓄电池,容量12V/12Ah,2节 |
应急时间 | 应急时间;切换时间 |
配置 | 工业PC板,2G内存,32G固态硬盘存储 |
显示操作 | 17寸液晶显示器,LED指示灯; 人机接口为鼠标键盘,按键; |
打印机 | 热敏打印机 |
下行总线 | 4个CAN总线:连接分配电装置与集中电源 |
上行总线 |
1个CAN:预留,可用于连接火灾报警控制器或其他用途; 1个RS485:预留,可用于连接火灾报警控制器或其他用途; 1个RS232:预留,可用于连接火灾报警控制器或其他用途; 1个以太网口:预留,可用于连接火灾报警控制器或其他用途。 |
外壳材质 | 金属 |
防护等级 | IP30 |
运行温度 | 0℃-45℃ |
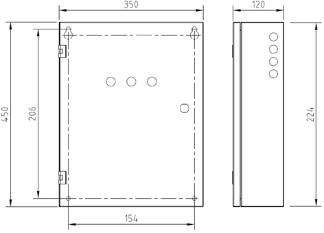
应急照明集中电源
类别 | 描述 |
输入电源 | AC220V/50Hz, |
输出电源 | DC36V,0.5kW |
备用电源 | 阀控密封式铅酸蓄电池,容量12V/38Ah,4节 |
本机功耗 | 10W |
应急时间 | 应急时间;切换时间 |
显示 | 点阵液晶显示,LED指示灯 |
操作方式 | 按键,开关操作 |
通讯总线 | 上行CAN |
外壳材质 | 金属 |
防护等级 | IP30 |
运行温度 | -10℃-45℃ |
安装方式 | 壁挂 |
应急照明分配电装置
类别 | 描述 |
输入电源 | DC36V,0.5kW |
输出电源 | 回路输出电压DC36V,电流≤2A |
通讯回路 | 5回路 |
本机功耗 | 10W |
应急时间 | 应急时间;切换时间 |
显示 | LED指示(主电、应急、故障) |
通讯总线 | 上行CAN/下行ABUS |
外壳材质 | 金属 |
防护等级 | IP30 |
运行温度 | -10℃-45℃ |
安装方式 | 壁挂 |
名称 | 型号 | 内容 | 安装方式 | 显示 |
集中电源集中控制型消防应急标志灯具 | A-BLJC-2OEⅡ1W-A420 | 安全出口 | 吊挂 | 双面 |
A-BLJC-2LEⅡ1W-A420L | 左向指示 | |||
A-BLJC-2LREⅡ1W-A420LR | 双向指示 | |||
A-BLJC-1OEⅡ0.5W-A400 | 安全出口 | 单面 | ||
A-BLJC-1LEⅡ0.5W-A400L | 左向指示 | |||
A-BLJC-1REⅡ0.5W-A400R | 右向指示 | |||
A-BLJC-1LREⅡ0.5W-A400LR | 双向指示 | |||
A-BLJC-1OEⅡ0.7W-A400F | 楼层指示 | |||
A-BLJC-1OEⅡ0.5W-A401 | 安全出口 | 壁装 | ||
A-BLJC-1LEⅡ0.5W-A401L | 左向指示 | |||
A-BLJC-1REⅡ0.5W-A401R | 右向指示 | |||
A-BLJC-1LREⅡ0.5W-A401LR | 双向指示 | |||
A-BLJC-1OEⅡ0.7W-A401F | 楼层指示 | |||
A-BLJC-LEⅠ0.5W-A500L | 单向指示 | 地埋 | ||
A-BLJC-LREⅠ0.5W-A500LR | 双向指示 | |||
集中电源集中控制型消防应急照明灯具 | A-ZLJC-E3W-A600 | 照明 | 壁装 | / |
A-ZLJC-E3W-A601 | 嵌顶 | / | ||
A-ZLJC-E6W-A602 | / |
应急照明集中电源
应急照明分配电装置
产品推荐
友情链接: 江苏安科瑞官网 | 江苏安科瑞微电网研究院有限公司 | 微电网能量管理事业部