ACR系列网络电力仪表

为企业微电网提供能效管理和用电安全解决方案

ACR10R三相防逆流电能表

  外置罗氏线圈和开合式互感器的导轨式谐波表,适用于冶炼、钢铁、电焊、半导体等高能耗行业的节能改造工程,也适用于分布式光伏并网柜的功率监测、电力需求侧管理等应用。具有无需拆一次母线、接线简单方便、施工安全,为用户节约改造成本等特点。它集成全部电力参数的测量(如单相或者三相的电流、电压、有功功率、无功功率、视在功率、频率、功率因数等)、复费率电能计量、四象限电能计量、谐波分析以及电能监测和考核管理。同时它具有多种外围接口功能可供用户选择:带有RS485通讯接口,采用MODBUS-RTU协议可满足通讯联网管理的需要;带开关量输入和继电器输出可实现断路器开关的“遥信”和“遥控”的功能,采用LCD显示界面,通过面板按键来实现参数设置和控制,非常适合于实时电力监控系统。

  • 产品简介
  • 技术参数
  • 产品选型
  • 外形尺寸

  1.概述
  外置罗氏线圈和开合式互感器的导轨式谐波表,适用于冶炼、钢铁、电焊、半导体等高能耗行业的节能改造工程,也适用于分布式光伏并网柜的功率监测、电力需求侧管理等应用。具有无需拆一次母线、接线简单方便、施工安全,为用户节约改造成本等特点。它集成全部电力参数的测量(如单相或者三相的电流、电压、有功功率、无功功率、视在功率、频率、功率因数等)、复费率电能计量、四象限电能计量、谐波分析以及电能监测和考核管理。同时它具有多种外围接口功能可供用户选择:带有RS485通讯接口,采用MODBUS-RTU协议可满足通讯联网管理的需要;带开关量输入和继电器输出可实现断路器开关的“遥信”和“遥控”的功能,采用LCD显示界面,通过面板按键来实现参数设置和控制,非常适合于实时电力监控系统。
        2.产品选型

 

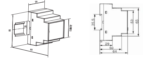
  外形及安装尺寸(单位:mm)

  

 

  开口式互感器尺寸(单位:mm)

  

 

  安装方法

  

产品推荐

ARCM300D组合式电气火灾监控探

ARCM300D组合式电气火灾监控探

ARCM300D组合式电气火灾监控探

...

江苏安科瑞电器制造有限公司是安科瑞电气股份有限公司[股票代码:300286.SZ]设在江苏江阴的生产基地,在智能电力仪表行业中采用无铅生产工艺、自动化生产检测设备;...

联系我们

地址:江苏省江阴市南闸东盟工业园区东盟路5号

电话:18706168052

邮箱:panli@email.acrel.cn

关注我们

友情链接: 江苏安科瑞官网 | 江苏安科瑞微电网研究院有限公司 | 微电网能量管理事业部

Copyright © 江苏安科瑞电器制造有限公司 备案号:苏ICP备08106144号-150 苏公网安备32028102003368号